Property Description
Western
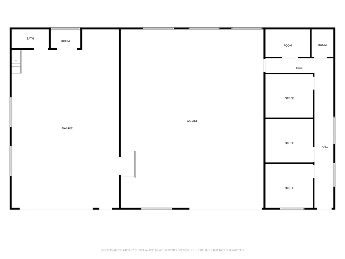
Colorado Commercial Shop with Office Space and Highway Frontage
Position
your business for visibility and growth with this upgraded and remodeled
Western
Colorado warehouse/shop offering functional shop space, professional
office
areas, and a move-in ready commercial setup in the heart of Plateau Valley and
near the
historic town of Collbran. Designed for productivity, the shop features two
insulated
bays with concrete floors, wide rolling overhead doors with electric motors,
220
electrical service, a beautifully finished tiled half bath, and a convenient
loading dock. Built-in shelving, counters, bright natural light, and overhead
lighting support efficient workflow, while a 5-ton overhead sliding hoist adds
capability for equipment and materials. Overhead heat units provide
year-round
comfort, and a side entrance allows easy access. Step through the covered
entry into
a welcoming office suite designed for daily business operations. Three
spacious,
carpeted offices are appointed with upscale desks, creating a polished,
professional
environment. The break room offers counter space, refrigerator, and
microwave—perfect
for a quick coffee, lunch break, or team reset during a busy
workday. Forced
air heat, air conditioning,
and a
mini-split system adds comfort and function throughout the office space.
Additional
features include a private well, storage shed, and paved parking area for
employees,
customers, and equipment. Set on the
high-traffic corner of Highway 330 and 57½ Road, this high-visibility commercial
property offers prime frontage and signage exposure to local and tourist traffic
alike. Neighboring businesses create more traffic flow for customers.
Surrounded
by the
natural beauty of Plateau Valley, with Grand Mesa—the largest flattop mountain
in the
world—rising nearby, this location blends business opportunity with Western
Colorado
lifestyle. Just minutes away, Powderhorn Mountain Resort and Vega State
Park offer
year-round recreation that draws steady traffic through the area. From high
mountain
peaks to open valley views, this property sits in the center of it all—an ideal
setting
for contractors, service-based businesses, or those seeking a commercial real
estate
opportunity with income potential in a growing mountain valley community.
Commercial
Shop for Sale in a Small Town Mountain Community
This
property offers a chance to live and work in a community surrounded by
homesteaded
ranches, residential homes and businesses located in other historical
buildings
in town and nearby smaller towns in the Plateau Valley. Recent renovations in
Collbran
have enhanced the old west theme and carried the true nature of the cowboy
town.
Attractive murals, vintage solar lights, a pergola with benches for a seating
area,
and more
carry a touch of yesteryear with the modern necessities for residential needs.
Services
include a bank, medical clinic with emergency care, grocery and liquor store,
motels,
restaurants, specialty shops, library, hardware store, mechanic shop, vet
clinic,
feed/c-store,
parts store, parks, churches and more. Police department and state of the
art Fire
Department add to the security of the area. New additions to the high
school/elementary
building and sports fields are in progress to meet the needs of the
growing
community. Friendly neighbors against the backdrop of towering mountains
makes this
valley an ideal place to live and work in a small-town lifestyle. Pride and
support
are the
heartbeat in this area, also known as Cowtown. Community activities are
celebrated
throughout the year and include Collbran Heritage Days, Cowboy Christmas,
school
events, rodeos, and an occasional cattle drive through town.
Western
Colorado Outdoor Recreation Near Commercial Property
This
property is approximately 3 miles east of Collbran. This historic western town
is
considered
the hub of the wheel leading to all aspects of recreation and community
activities
and business operations. Tourists travel Highways 65 and 330 during all
seasons
for all activities–fishing, hunting, hiking, skiing, jeeping, snowmobiling,
boating,
camping,
rodeos, biking. From the I70 corridor these highways lead to Grand Mesa, aka
the
largest flattop mountain in the world, Vega State Park, Powderhorn Ski Resort,
hunting
districts and public land access. The surrounding mountain ranges offer
recreational
features of all interests for the outdoor enthusiast. Grand Mesa has over
300 lakes
with fishing and boating, campgrounds and lodges, hunting districts, hiking
trails,
cross-country skiing, snowmobiling and more. The slopes of the Powderhorn Ski
resort are
open year round for winter and summer activities. Vega State Park is known
for
mountain water fishing, boating, pristine camping sites, hiking trails, and
year round
activities.
Vega Lodge is known for friendly service for food and cabin rentals.
Thousands
of acres of public lands covered in forests of aspen and pine trees are
utilized
for four wheeling, hunting, hiking and more. Rodeos are conducted throughout
the summer
from professional competition to junior rodeos and gymkhanas. No matter
what
your interest, bring a camera and capture the serenity and beauty of the area.
Wildlife
viewing is abundant in every direction.
Western
Colorado Shop for Sale Near Grand Junction Outdoor Recreation
The
Western Slope of Colorado year-round adventure for all outdoor enthusiasts.
Within
an hour’s
drive from Collbran find high desert adventure surrounding the largest town on
the
western slope, Grand Junction. Travel the Rim Rock Drive of the nearby Colorado
National
monument. Enjoy the magnificent views of rock formations, canyons, plants,
birds and
wildlife along the drive or hiking trails of the high desert. Lots of photo
opportunities
for the photographer and don’t forget the selfies. Stop at visitor centers for
information
on picnic and campground areas, hiking trails, youth learning opportunities,
and the
history of this valley’s treasure of beauty. Mount Garfield is one of the well-
known
landmarks for hiking and viewing wildlife, including wild horses. Enjoy river
rafting or
tube floating along the river or fish along the easy accesses to the riverbanks
of the
Colorado River. The surrounding high desert offers off road, ATV, hiking,
biking,
popular
wheeling challenges and horseback riding trails.
PROPERTY HIGHLIGHTS:
| Colorado Investment | Commercial Investment For Sale | 15757 57 1/2 Road Collbran CO | ||
| Commercial Shop & Office Space | Amber Feller 970-986-0851 | Commercial Shop For Sale in CO | ||
| Commercial Building For Sale | Julie Piland 970-985-0913 | Commercial Property |




















